貸工場・貸倉庫・貸土地
※下記に未掲載の物件は現在取り扱いがございません。

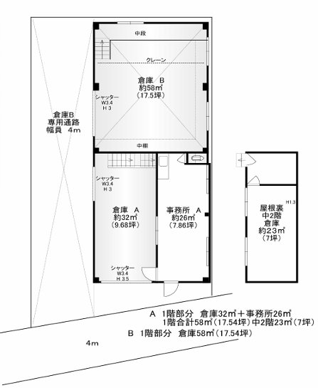
JR加島駅徒歩約7分「加島4丁目貸倉庫・作業所・事務所2区画あり・鉄骨スレート葺平屋建」第1種住居地域!

大阪市淀川区加島4丁目8-14
前面4m道路面す・現状渡し・クレーン等残置物あり・近隣駐車場あり!
シャッターW3.4mXH3m・前面スペース搬入搬出時に利用可!
詳細はお問い合わせください!

物件概要

種別
貸倉庫・事務所
月額賃料
165,000円(税込)
敷金
300,000
礼金
300,000
使用面積
139㎡(約42.08坪)
建物構造
鉄骨造
築年月
1987年(月日不詳)
階数
2階建
駐車場
無し
用途地域
第一種住居地域
建ぺい率
60%
容積率
200%
現況
空き
引渡
相談
契約期間
2年更新
設備
クレーン等残置物・シャッター
100V有・上下水道
備考
1階面積A1階約58㎡(17.54坪)・B1階約58㎡(17.54坪)
1階面積A2階約23㎡(7坪)
合計面積A約81㎡(約24.54坪)・B1階約58㎡(17.54坪)
火災保険
加入要
賃貸保証会社
加入要
注意事項
※資料と現況が異なる場合は現況を優先します。
※2年以内(2ヶ月)・1年以内(1ヶ月)解約違約金あり
※前面道路4m道路のため、進入車種現地確認すること。
※前面スペース搬入搬出時に利用可
※保証会社(K-NET初回100%・年間更新料10%)
取引態様
仲介
物件担当
坂元

アクセス

所在地
大阪市淀川区加島4丁目8-14
交通
JR東西線加島駅徒歩約7分